CONSTRUCTION D’UN IMMEUBLE À USAGE D’HABITATION MERE (78)
Date de réalisation étude : 2020/2022
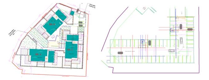
Nature des travaux : Le projet consiste en la construction de 3 immeubles d’habitation de type R+1 avec comble et un niveau de sous-sol partiel.
Maître d’ouvrage : SCCV Le Clos Sainte Anne
Type de Mission : Missions G2 AVP + PRO
Contexte : Le projet consiste en la construction de 3 immeubles d’habitation de type R+1 avec comble et un niveau de sous-sol partiel.
Le sous-sol sera commun aux bâtiments A et C (sous-sol débordant). Le bâtiment B ne possédera pas de niveau de sous-sol.
Il nous a été confié une mission G2 AVP et G2 PRO, afin de :
Définir les principes de construction envisageable et d’établir une ébauche dimensionnelle par type d’ouvrage géotechnique
Prendre en compte les descentes de charge de l’ouvrage / les notes de calcul de dimensionnement des ouvrages géotechniques (Logiciels : FOXTA et KREA)
Type d’ouvrage choisit :
Pour les fondations : semelles superficielles (filantes ou isolées) (logiciel Foxta)Pour le soutènement : pieux sécants (logiciel KRéa)
Aléas et risques géologiques considérés :complexite du projet
Le niveau de la nappe se situe à environ 1,5 m au-dessus du fond de fouille,
Les Sables semblent avoir une mauvaise tenue à court terme (éboulement constaté lors des sondages) et sont sensibles aux circulations d’eau (phénomène de lessivage)
Des surpuissances des Remblais peuvent être observées notamment au droit des bâtis à démolir.
Complexité du projet :
Présence d’un talus avec mitoyen sensibleDimensionnement d’une paroi en pieux sécantsTerrassement sous eau dans un sol sableux sans cohésionEstimation des débits d’exhaure (mise en place d’un rabattement par pointes filtrantes)
Bureau d’études géotechniques,
nous vous accompagnons dans vos études,
vos projets de construction et dans
le cadre d’expertises en cas de sinistre.
Siège social
41 rue Fourny 78530 Buc Cedex
Téléphone : 01 39 56 22 86
Nous sommes ouverts du lundi au vendredi de 8h30 à 18h30.
© 2023 Unisol Mentions légales - Protection de la vie privée-Cookies - Réalisé par Unisol